69
20
11
銀鷺萬樹城小區團裝正在進行中……


參加團裝活動享受哪些優惠政策
圖片或者文字排版出來即可
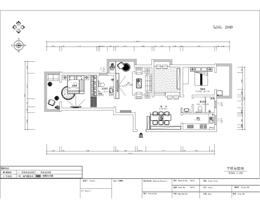
裝修設計的效果圖最好再加上戶型圖







團裝小區欄目為您提供石家莊各小區戶型圖、樣板間圖、裝修效果圖、實景圖、裝修案例等,讓您全面了解石家莊小區裝修情況,查找小區裝飾案例的相關內容上<鰲贏家裝共享平臺}>官網團裝小區欄目。"/>
| 團裝小區 |


參加團裝活動享受哪些優惠政策
圖片或者文字排版出來即可
裝修設計的效果圖最好再加上戶型圖






